Högspolande toalett p-lås obs p-lås
Artikelnr AW005
Burlington högspolande toalett i klassisk utformning med spolhandtag och mjukstängande sits. Själva stolen kan fås i två olika sitthöjder, standard 395 mm (utan sits) och förhöjd 475 mm (utan sits) för långa personer eller personer med nedsatt rörlighet. Denna toalett har en unik kombination av klassiskt utseende och modern funktion. Den är utrustad med hel och halvspolning med justerbar spolmängd trotts att det är en högspolande toalett. Tryck uppåt för halvspolning och drag nedåt för helspolning. Toaletten säljs komplett med mjukstängande sits i någon av de färger och utföranden som står nedan.
Toaletten med normal sitthöjd finns i två varianter:
– AW006 är med med S-lås (avlopp nedåt), vilket är standard och passar på svensk avsättning ca 12 cm.
– AW005 är med P-lås (avlopp bakåt). Plaststos för anslutning till golvavlopp medföljer. För väggavlopp kan rak plaststos köpas till (installatör kan hjälpa till med detta).
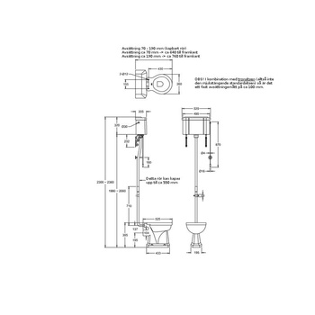
Toaletten kan även specialbeställas med den gammaldags tron-sitsen i färgerna mahogny eller ek. Den går även att beställa med ett specialrör som gör att den går att montera i en vinkel (se bild).
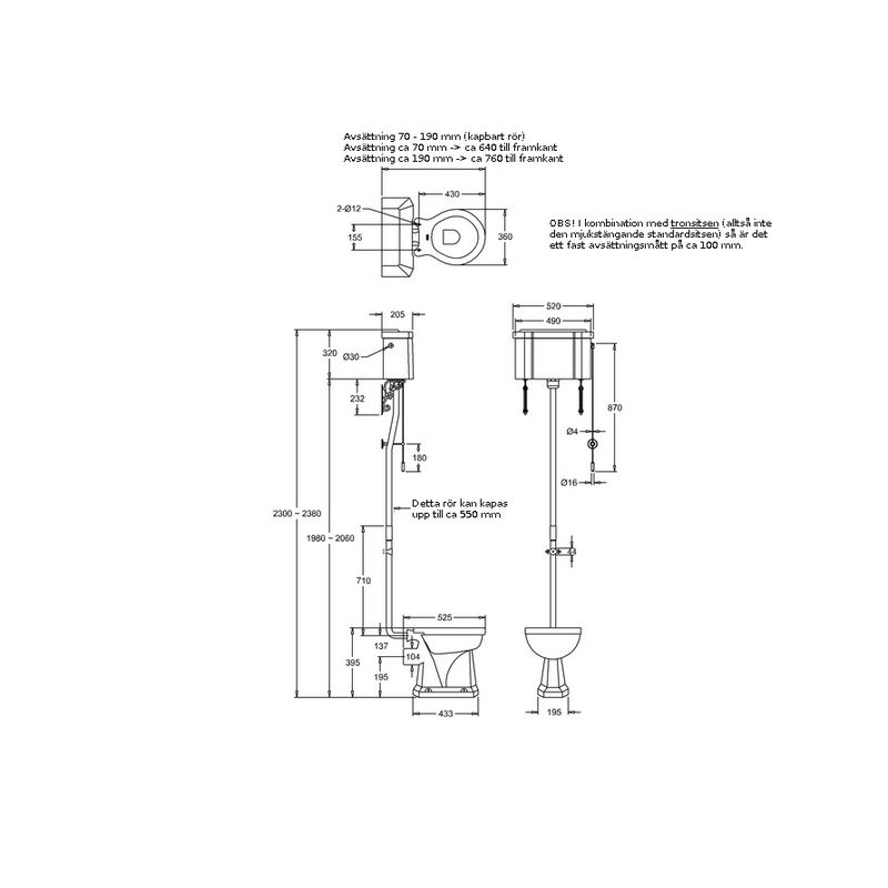
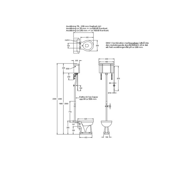
Tänk på att måtten på ritningen kan anpassas genom att såga av spolrören både i höjdled och i djupled. Tanken kan därmed placeras mycket lägre och stolen närmare väggen om man så önskar.
Vi levererar toaletten med anpassningsdetaljer för svensk avsättning (normalt ca 10-12 cm) och svenskt vattentryck. Vi monterar även cisterndetaljer och innanmäte som normalt kommer lösa i en påse vid köp av engelska toaletter.
Alla toaletter i Burlington-serien har s.k. nanoglasyr vilket gör att smuts och bakterier inte fastnar lika lätt som på vanligt porslin. Detta medför även att rengöring är enklare. Alla Burlington-produkter är även CE-godkända vilket gör dem godkända för användning inom hela EU.
Observera att våra toaletter levereras kompletterade med detaljer för svenskt vattentryck och avloppsavsättning. Spol- och inloppsutrustning, som normalt kommer omonterade till engelska toaletter, är på våra toaletter färdigmonterade för att underlätta vid installation. Avsikten är att få billigare installation och mindre framtida underhåll.
WC


